Toggle navigation
現在位置から
駐車場を検索
利用方法
ログイン
新規会員登録
お問い合わせ
月極駐車場をお探しの方
×
ログイン
Eメールアドレスもしくはパスワードが正しくありません。
Eメールアドレス
パスワード
パスワードをお忘れですか?
空車
[2175] 岩屋第4駐車場
地図で確認する
不正駐車巡回監視中
料金設定
料金は前払い制となります。
通常料金
会員料金
新規会員登録
当駐車場の注意事項
こちらページは近隣検索用の駐車場情報詳細ページです。
初めてご利用の際には、現地に設置してある看板のQRコードを読み取っていただき入庫をお願いいたします。
利用方法を確認
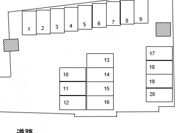
現在の車室情報
空車
1
空車
2
空車
3
空車
4
空車
5
空車
6
空車
7
空車
8
空車
9
空車
10
空車
11
空車
12
空車
13
空車
14
空車
15
空車
16
空車
17
空車
18
空車
19
空車
20
駐車場位置・QRparkのURLを送る
迷惑駐車報告
最大1日分の無料券を進呈
こちらのページでは入庫できません
TOP